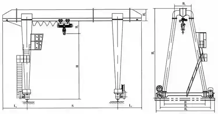
Single girder gantry crane is a type of light small gantry crane with a single girder and rail travelling. The single girder gantry crane is designed for generally material handling, with the lifting capacity around 1 to 20 tons, and working class A3, or A4. Single girder gantry crane can be divided into box type and truss type.
Box type
The box type single girder gantry crane is a medium sized crane, travelling in track , usually equipped with standard CD MD electric hoist as the lifting mechanism, and the electric hoist traversing along the lower flange of the I- steel of the main girder, which is made of high quality steel plates, such as, C-steel and I-steel.
Truss type
The truss single girder gantry crane differentiates itself with the box type crane in terms of structure construction. The former is made of steel bars and the latter is made of steel plates. The truss gantry crane is much lighter than that of the box type gantry crane and it has high wind resistance.


The single girder gantry crane is a common yet highly functional crane. Engineered for general material handling, it's a workhorse in multiple settings. At open grounds, it efficiently moves construction materials. Warehouses use it to shift stored items. Ports rely on it for container handling, and industries like granite and cement pipe production benefit from its ability to lift heavy components. In open yards, container depots, and shipyards, it streamlines operations. But safety is key: it must never handle molten metal due to heat risks, nor inflammable or explosive items to prevent disasters.